














Состав проектной документации:
- Титульный лист
- Пояснительная записка
- Схема планировочной организации земельного участка
- Планировочное решение 1-го этажа
- Планировочное решение 2-го этажа (при наличии)
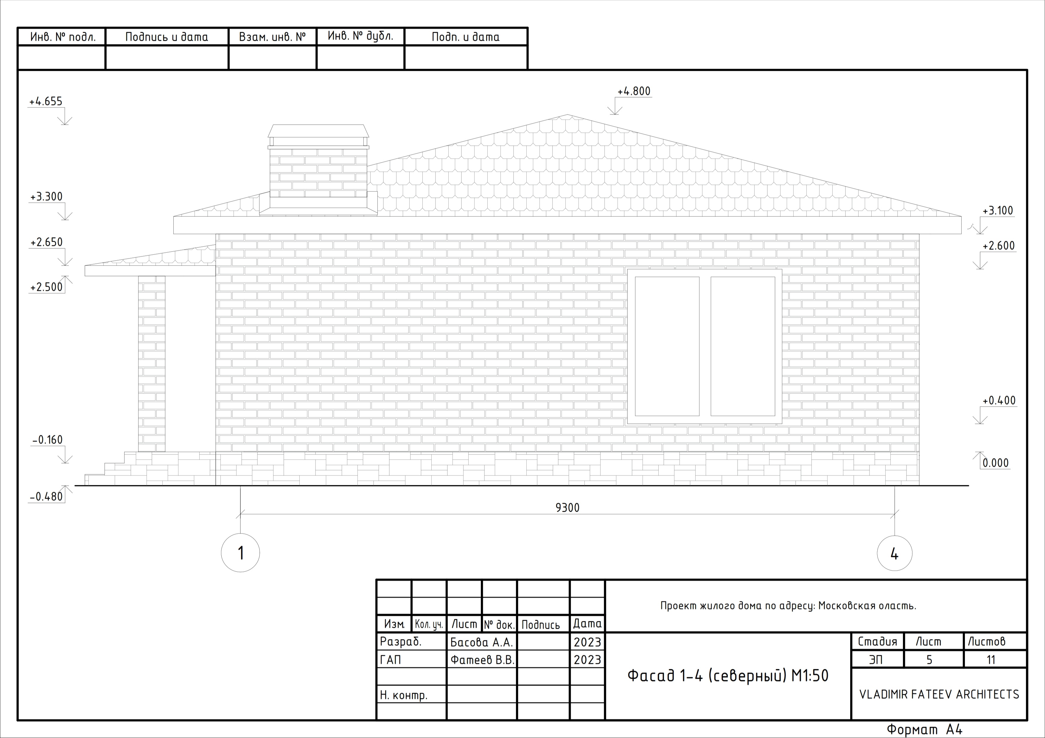
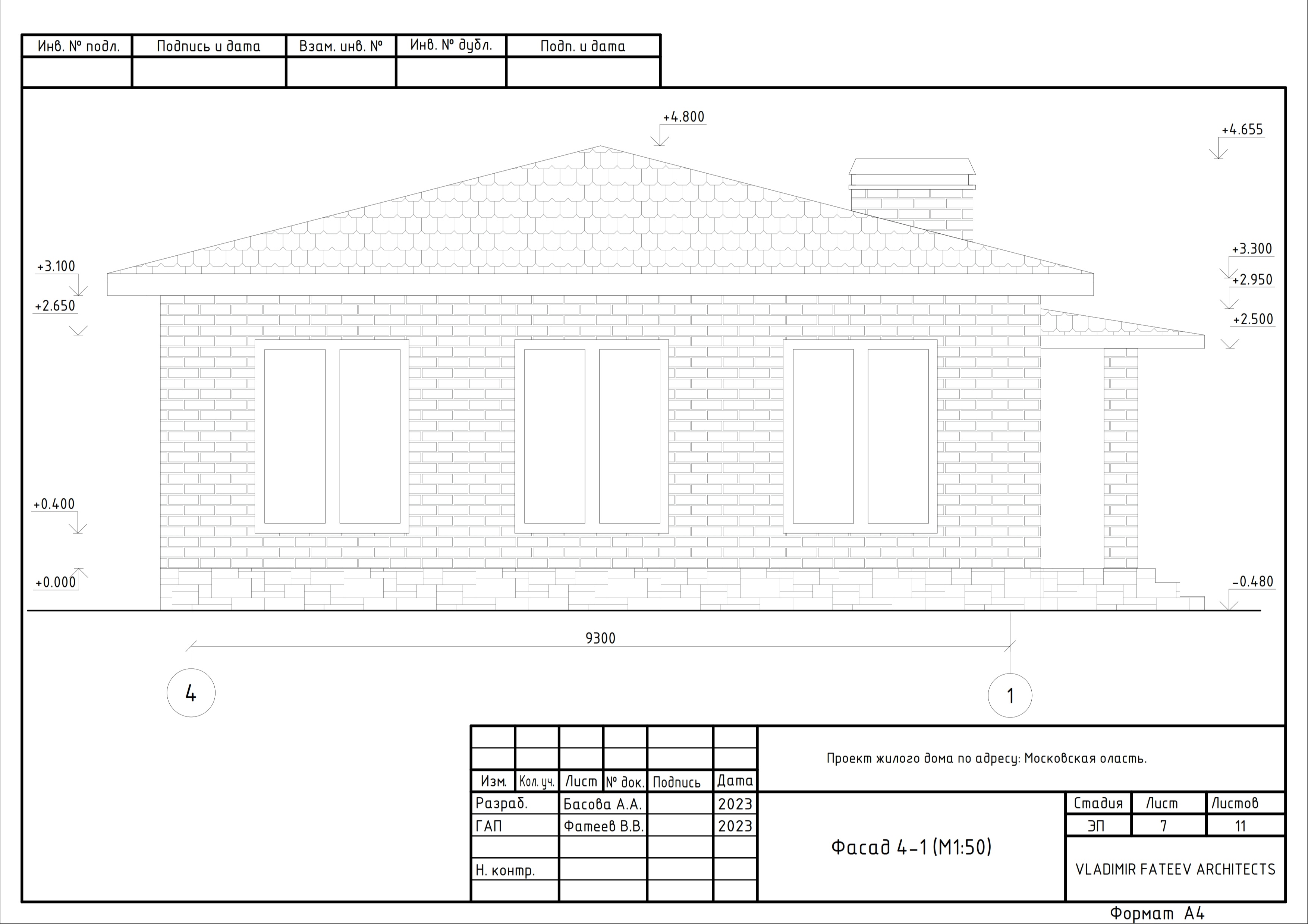
- 4 проекции фасада в ч/б графике с размерами и высотными отметками
- План кровли с размерами и демонстрацией уклонов
- 2-3 разреза с размерами и высотными отметками
Состав проектной документации:
- Титульный лист;
- Пояснительная записка;
- Схема планировочной организации земельного участка;
- Поэтажное планировочное решение;
- Поэтажное планировочное решение с мебелью;
- Цветовое решение фасадов;
- 2-3 разреза с размерами и высотными отметками;
- План кровли с водостоком, размерами и демонстрацией уклонов ;
- План фундамента;
- Спецификация заполнения оконных и дверных проёмов;
- 3D визуализация внешнего вида дома (цветная).
Вы получите:
- Изображения в высоком разрешении;
- 4-6 ракурсов;
- Формат изображений: jpeg, pdf.
от 350₽/м2
Подробнееот 950₽/м2
Подробнееот 400₽/м2


















Вы получите:
- Изображения в высоком разрешении;
- 3-4 ракурса на помещение;
- Формат изображений: jpeg, pdf.
от 450₽/м2
Подробнее



Состав дизайн-проекта:
- Титульный лист;
- Обмерный план;
- Планировочное решение с мебелью
- План полов
- 3D-визуализация (реалистичная)
от 1500₽/м2
Подробнее



Состав дизайн-проекта:
- Титульный лист;
- Состав ландшафтно проектной документации;
- Анализ территории
- Генеральный план участка
(привязка объектов кап. строительства)
- Дендрологический план
- Ведомость озеленения
- 3D-визуализация (реалистичная)
от 5500₽/сотка
Подробнее



Оставляя заявку, вы соглашаетесь на обработку персональных данных